
【 新築戸建 】人気の東田辺で限定1区画、新規分譲開始
| 最寄駅 | 所在地 | 面積 | 築年月 | 価格 | 間取り |
|---|---|---|---|---|---|
大阪メトロ谷町線「駒川中野」駅 徒歩 8分 | 大阪市東住吉区東田辺2-17-2 | 土地/63.26㎡ 建物/105.78㎡ | 2026年06月 | 4,780 万円 | 4 LDK |
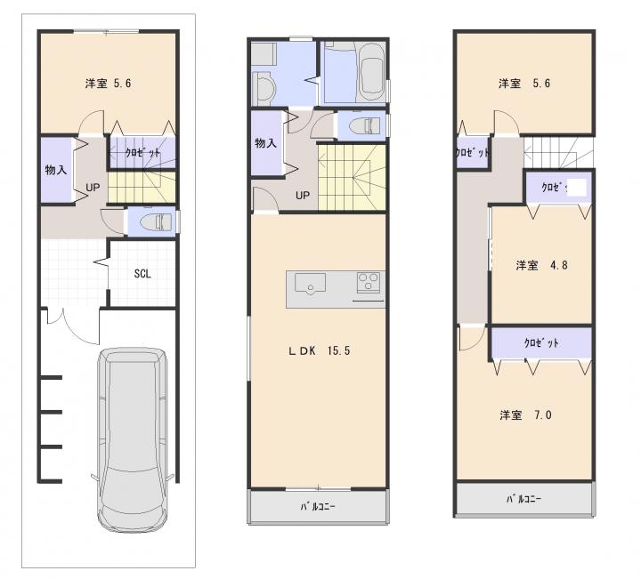
自由設計のためお客様のご希望の間取りにて建築可能です。
物件写真・間取り
物件概要
| 物件名 | アートスタイル東住吉区東田辺2丁目 |
|---|
| 交通機関 | 大阪メトロ谷町線「駒川中野」駅 徒歩 8分分 |
|---|
| 所在地 | 大阪市東住吉区東田辺2-17-2 |
|---|
| 価格 | 4,780万円 |
|---|
| 間取り | 4 LDK |
|---|
| 土地権利 | 所有権 |
|---|
| 土地面積 | 63.26㎡ |
|---|
| 私道負担面積 | 無し |
|---|
| 建物面積 | 105.78㎡ |
|---|
| 建物構造 | 木造 |
|---|
| 階 / 階数 | 3階建て |
|---|
| 築年月 | 2026年06月 |
|---|
| 都市計画 | 市街化区域 |
|---|
| 用途地域 | 第二種中高層住居専用地域 |
|---|
| 建ぺい率 | 60% |
|---|
| 容積率 | 200% |
|---|
| 駐車場 | 有 |
|---|
| 接道 |
|
|---|
| 地目 | 宅地 |
|---|
| 現況 | 更地 |
|---|
| 販売戸数 | 1 |
|---|
| 引渡し | 相談 |
|---|
| 取引態様 | 専属 |
|---|
| 情報登録日 | 2026年02月20日 |
|---|
| 情報更新日 |
|---|












